MONTESORI + DEPORTIVO BOSCALIA

Tipología: NAVE
Ubicación: SAN LUIS POTOSÍ
Año: 2023
Créditos: KALABERA + STUDIO51
PANCHO KALABERA / MANUEL MÀRQUEZ / ELIZABET COMPEAN/ HECTOR PADRON/ GABRIEL MADRIGAL/ DIEGO PONCE
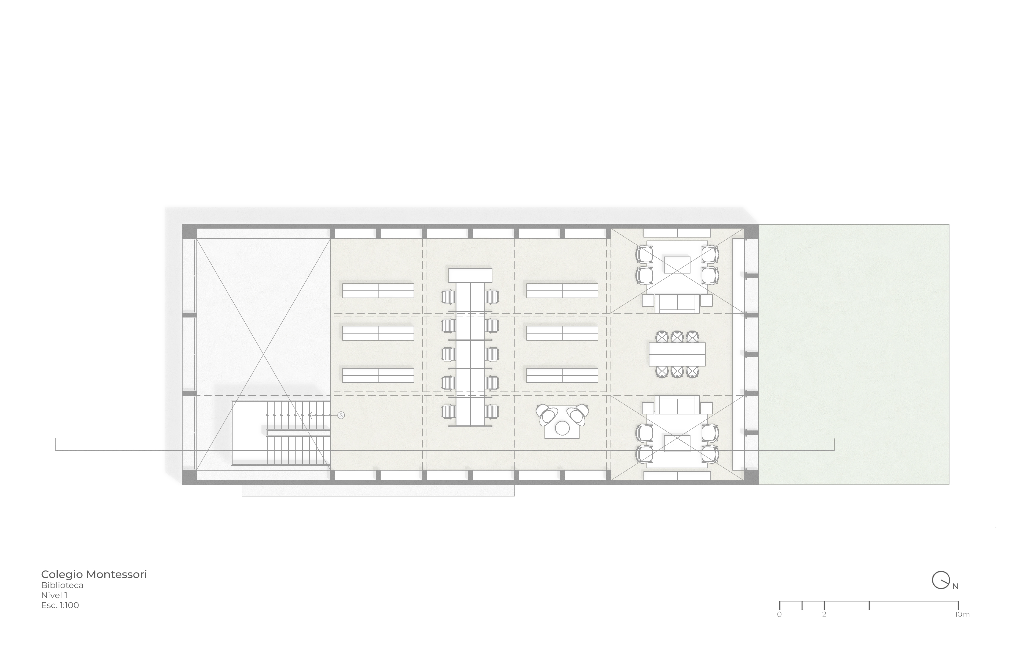
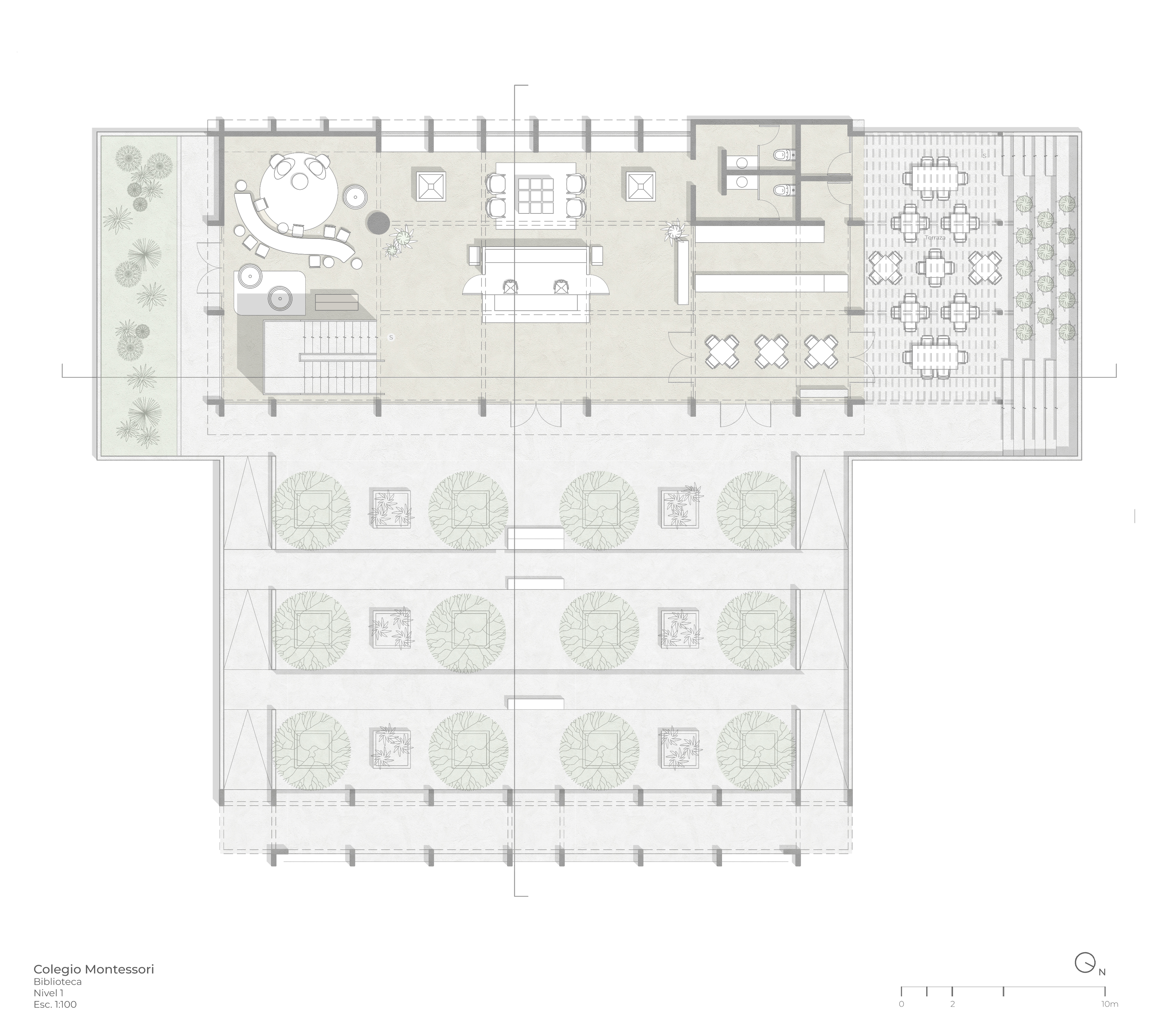
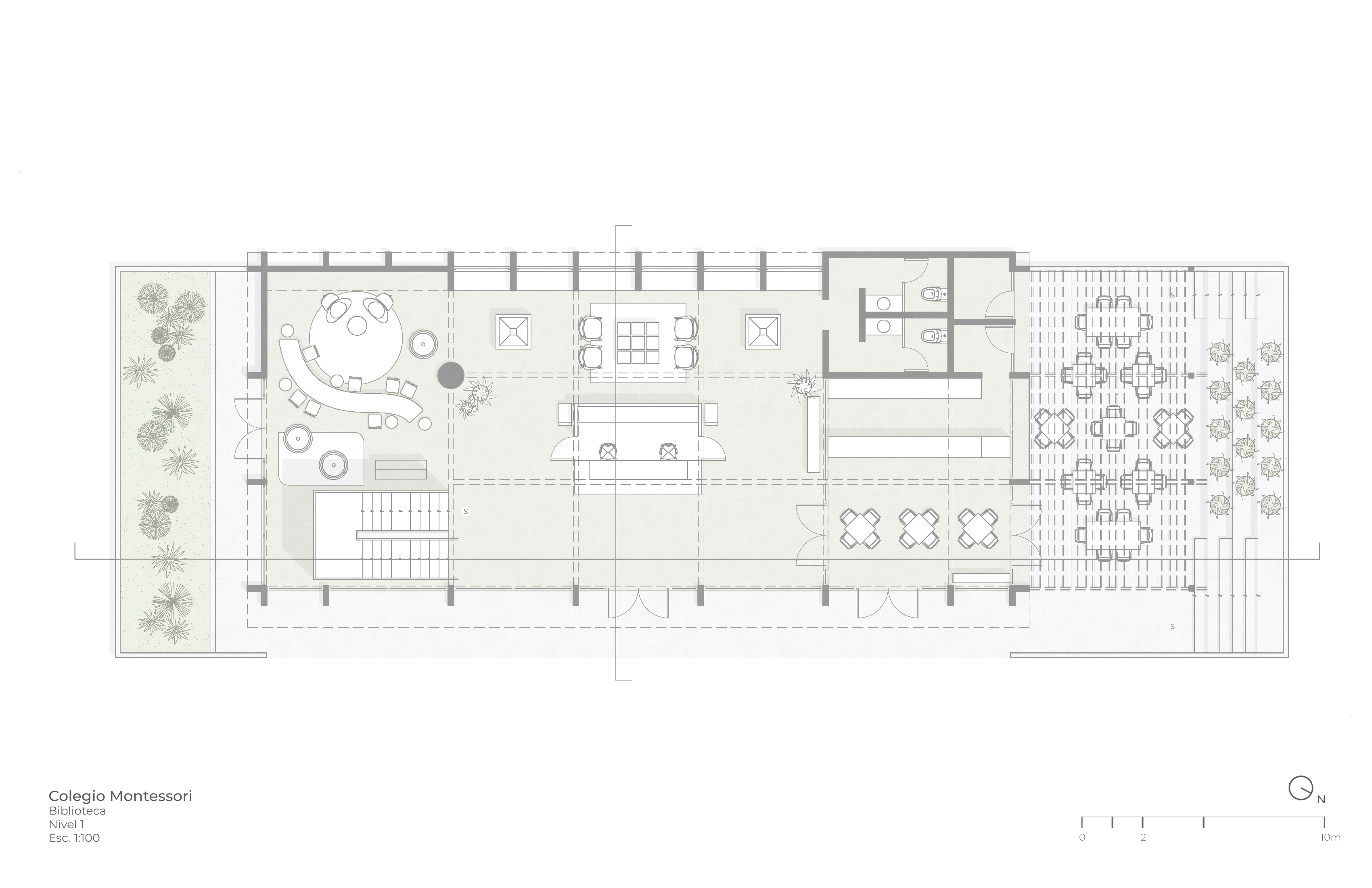
El proyecto de urbanización propone la creación de edificios para una escuela y un club deportivo, separados por un circuito de distribución que fragmenta los predios según el uso de suelo. Un gran jardín y una cancha de Fútbol 7 en el centro crean la ilusión de un parque continuo. La escuela Montessori se diseñó con un enfoque modular y progresivo, permitiendo su construcción por etapas. La retícula de 9x9 metros y pasillos de dos metros entre huellas facilita la expansión y la creación de espacios versátiles. La Biblioteca se ubica al poniente y se conecta con un huerto. La permeabilidad modular refleja la idea de 'Libertad con límites' de Montessori. La materialidad busca integrarse al contexto árido de la región con elementos de concreto, ladrillo beige y terrazo. Para el club deportivo, se busca una presencia contundente con naves basilicales para la alberca y la arena. El edificio sigue el mismo lenguaje material que la escuela, con una estructura modular de concreto aparente. Las áreas abiertas rodean las naves, incluyendo canchas de pádel, tenis, Fútbol 7, alberca social y cafetería. La materialidad incluye concreto aparente, ladrillo beige y terrazo pulido.